Castellane: Réhabilitation de 320 logements sociaux
1003
portfolio_page-template-default,single,single-portfolio_page,postid-1003,bridge-core-1.0.6,ajax_fade,page_not_loaded,,qode-child-theme-ver-1.0.0,qode-theme-ver-18.2,qode-theme-bridge,disabled_footer_top,qode_header_in_grid,wpb-js-composer js-comp-ver-6.0.5,vc_responsive

Castellane: Réhabilitation de 320 logements sociaux

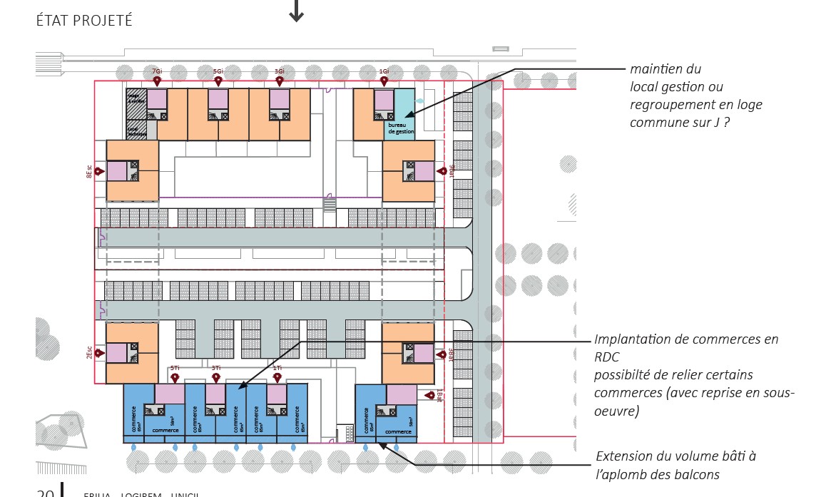
Réhabilitation durable et restructuration en site occupé sensible des bâtiments I, J et l’ilot D rassemblant 320 lomements sociaux en R+5
Catégorie :
Réhabilitations
A propos
LOCALISATION :

Marseille

 

MAITRISE D’OUVRAGE :

ERILIA

 

MAITRISE D’ŒUVRE :

JSA + Faugué/ Renaut +
Alterea + Fondaconseil + Bellastock

 

SURFACE :

22 400 m²

 

COUT DES TRAVAUX :

18 000 000 € HT

 

MISSION EFFECTUÉE :

Mission complète – Base loi MOP

 

STADE DU PROJET :

Etudes en cours

 

LABELISATION :

BBC Effinergie rénovation
référenriel 2024